2. Приборы учета тепловой энергии:
Поверка приборов учета тепловой энергии, ремонт...
Журнал учета тепловой энергии и теплоносителя
Приборы учета тепловой энергии и теплоносителя ...
Презентация на тему: ТЕПЛОВЫЕ
Приборы учета электроэнергии:
Скачать Журнал учета тепловой энергии и теплоно...
Журнал учета тепловой энергии и теплоносителя о...
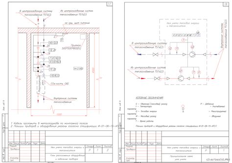
АТС Узел коммерческого учета тепловой энергии и...
Лічильники ультразвукові тепла води стоків — Ер...
Приборы учета энергии - презентация онлайн
Приборы учёта тепловой энергии и теплоносителя
Приборы учета воды и приборы учета тепла. Катал...
Скачать Правила коммерческого учета тепловой эн...
Приборы учета — ТОО Алматинские Тепловые Сети
Услуги по поверке | ВОДОМЕР СЕРВИС
Первый этап. Установка прибора учета тепловой э...
Основные НТД по коммерческому учету тепловой эн...
Счетчики тепловой энергии , приборы учета тепло...
Общедомовой прибор учета тепловой энергии в мно...
Журнал учета тепловой энергии и теплоносителя у...
Новый АКТ. ОБЩЕДОМОВЫЕ ПРИБОРЫ УЧЕТА потреблени...
Приборы контроля и учета тепла, газа, воды и эл...