Система уравнивания потенциалов - ZandZ.com
⚡ Система уравнивания потенциалов
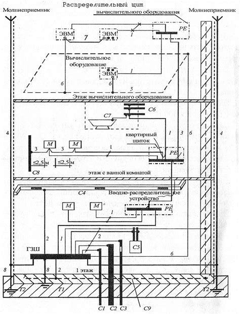
Система уравнивания потенциалов (СУП)
Уравнивание потенциалов - Электроснабжение пром...
Необходимость системы уравнивания потенциалов -...
Схема уравнивания потенциалов dwg
Система уравнивания потенциалов — статьи на сай...
Система уравнивания потенциалов
Электрический потенциал и правила их выравниван...
16. Система уравнивания потенциалов
Как уравнять потенциалы в быту по ПУЭ
Система уравнивания потенциалов - назначение и ...
Инструкция По Выполнению Схем Уравнивания Потен...
Системы уравнивания потенциалов
3.4 Уравнивание потенциалов
Схема уравнивания потенциалов dwg Проекты элект...
Расчёт Системы Уравнивания Потенциалов - baltim...
Система уравнивания потенциалов: схемы, требова...
Монтаж уравнивания потенциалов в Санкт-Петербур...